Шаршаков Олексій

Шаршаков Олексій

Специалист по продаже квартир
Киев

Шаршаков Олексій

Специалист по продаже квартир
Киев
Верифицированный профиль
PRO аккаунт
Професійний акаунт
Gold partner
10
Лет опыта
1
Верифицированная рекомендация
7
Лет на сайте
Рекомендовать
Активных объявлений
2
Эксклюзивных объектов
0
Рекламная активность
298
Последний визит на сайт
вчера
Професійно продаю нерухомість з 2016 року.
Займаюсь новими та сучасними проектами.

Маю великий досвід роботи в прогресивній девелоперській компанії, тому знаю основи первинної нерухомості з середини. Також маю досвід роботи з вторинною нерухомістю.

Регулярно підвищую кваліфікацію. Чудово розбираюсь у юридичних та фінансових питаннях.

І просто люблю те, чим займаюсь.
Продавець нерухомості - це стиль життя.

Портфолио реализованных объектов (81)

  • сдано
    1 250 $/мес

    Златоустовская ул., 50

    3 комнаты
    133 / 60 / 58 м²
    этаж 5 из 15
    10 мес. назад
    ДРУГА ЗДАЧА! Здам 3к 133 м2, вул. Златоустівська 50, Чорновола, Лук'янівська, БЕЗ % Вперше здається в оренду 3к квартира 133 м2 по вулиці Златоустівська 50, ЖК Златоустівський, метро Лук'янівка, БЕЗ %. Площа – 133 м2. Велика кухня-вітальня + 2 окремі кімнати + 2 сан вузли (гостьовий і великий) + гардеробна. Великий передпокій та балкон. Поверх: 5 з 15 Вікна на Північний Схід. У внутрішній двір. Квартира укомплектована на максимум. Дорогий ремонт (ніколи не планувалась здаватись в оренду) БОНУСОМ: кавова машина, посудомийна машина, винний холодильник, сейф, гардеробна, підігрів підлоги, робот пилосос. Встановлено лічильники на тепло, світло, воду (всі повірені). Система антипотоп по квар...
  • сдано
    15 500 грн/мес

    Соборности просп. (Воззʼєднання), 17

    1 комната
    32 / 10 / 15 м²
    этаж 8 из 13
    1 г. 1 мес. назад
    Здам 1к 32 м2, проспект Соборності 17, ЖК Комфорт Таун, Регенераторная, БЕЗ % БЕЗ %. Здам в оренду 1к 32 м2 в ЖК Комфорт Таун. проспект Соборності 17, секція 4 Світла та тепла квартира. Вид на місто. Західна сторона. Поверх 8/13 Квартира повністю укомплектована для проживання. Бойлер, пральна машина, кондиціонер, плита, міні холодильник, чайник, мікрохвильовка, ліжко з ортопедичним матрацом. Ціна: 15,500 грн + комунальні послуги. Комісія - 0%. Роботу рієлтора оплачує власник.
  • сдано
    19 500 грн/мес

    Авиаконструктора Игоря Сикорского ул. (Танковая), 1

    2 комнаты
    75 / 30 / 30 м²
    этаж 21 из 23
    2 г. 5 мес. назад
    Здам в оренду 2к квартиру 75 м2 по вулиці Сікорського 1, Танкова 1, в ЖК Зелений острів-1. Новий будинок. Метро: Берестейська 10 хв пішки, Нивки 7 хв на машині. Площа – 75 м2. Велика кухня-вітальня + окрема кімната з гардеробом + суміжний санвузол. Великий передпокій та подвійний балкон. Поверх: 21 з 23 (всього 4 квартири на поверсі, 3 ліфти) Вікна на Південний Схід. Гарний панорамний вид на місто. Є все необхідне для життя: пральна машина, плита, духовка, холодильник, мікрохвильова піч, 2 телевізори, бойлер на 80 л. ДОДАТКОВО: сейф, посудомийна машина, підігрів підлоги. Завжди світло за рахунок великих вікон та сонячної сторони. Встановлено лічильники на тепло, світло, воду. Комунал...
  • продано
    43 000 $
    1 194 $/м²

    Милютенко ул., 17-А

    1 комната
    36 / 16 / 10 м²
    этаж 13 из 16
    2 г. 5 мес. назад
    Продам 1к квартиру 36 м2 з ремонтом, 13 поверх, за адресою: вул. Мілютенка 17-А, Лісовий масив, метро Лісова, БЕЗ КОМІСІЇ Спальний район. Поруч вся необхідна інфраструктура для життя. До метро Лісова/Чернігівська 25-30 хв пішки. Поруч школа №218, Дитячий садок №519 та відділення Нової Пошти №44. 16 поверховий будинок. Тихий двір. Завжди є місця для авто. Також біля будинку платна стоянка. Охайний під'їзд. Поруч велика лісова зона та ринок Юність. Про квартиру. Площа: 36 м2 (але по відчуттю більше) Поверх: 13 / 16 Окрема велика кімната + Кухня + Роздільні санвузол та душова + балкон + гардеробна зона. Свіжий ремонт. Збережений стан. Можна заїхати та жити. Квартира повністю укомплектована т...
  • сдано
    17 000 грн/мес

    Олександра Олеся ул., 4-А

    1 комната
    42 / 14 / 17 м²
    этаж 13 из 13
    2 г. 6 мес. назад
    Здам 1к квартиру 42 м2 за адресою: вул. Олексанра Олеся 4-А, ЖК Варшавський. 7 черга. Якісний та новий будинок. Охорона. Виноградар. БЕЗ % Площа - 42 м2. Велика кухня-вітальня + окрема кімната + гардеробна! Великий сан вузол з ванною! Поверх: 13/13 (останній, не занадто високий) немає сусідів зверху. Вікна на Захід. Ввечері можна спостерігати неймовірні заходи сонця. Є все необхідне для комфортного життя: пральна машина, посудомийка, плита, духова шафа, холодильник, Smart TV, інтернет, великий бойлер, зручна сушка, кондиціонер на кухні та в кімнаті, атмосферні підсвітки. БОНУС: праска, сушка для речей, посуд, білизна, подушки. Все є. За потреби залишимо, або заберемо. Лічильники на все:...
  • сдано
    1 000 $/мес

    Регенераторная ул., 4

    4 комнаты
    130 / 80 / 15 м²
    этаж 9 из 11
    2017 год постройки
    1 г. 9 мес. назад
    ЗДАМ В ОРЕНДУ 3 рівні 130 м2 в ЖК Комфорт Таун, Comfort Town по вул. Регенераторна 4к7, поруч Ленінградська площа, БЕЗ КОМІСІЇ! 3 черга. Корпус №7 - введено 2014 р. - всі сусіди вже давно закінчили ремонти. Один з кращих проєктів у місті Київ. Дуже багато красивих деталей. Що на території? Футбольні і баскетбольні поля, сучасні тренажери, дитячі майданчики у кожному внутрішньому дворі, зони для відпочинку, Академія та Гімназія А+. Комплекс закритого типу з пропускною системою та охороною 24/7. Пішки доступ до: супермаркет NOVUS та SPORTLIFE. Величезна кількість магазинів, салонів, та іншої необхідної для життя інфраструктури прямо на території. Площа: 130 м2. 3 рівні. На кожному рівні с...
  • сдано
    50 000 грн/мес

    Бульварно-Кудрявская ул. (Воровского), 17-Б

    2 комнаты
    70 / 34 / 15 м²
    этаж 14 из 18
    1 г. 5 мес. назад
    ДРУГА ЗДАЧА! 2к квартира 70 м2 за адресою: ЖК Ярославів Град, вул. Бульварно-Кудрявська 17-Б, Золоті Ворота, БЕЗ % Новий, стильний будинок. Дуже висока якість будівництва. Чудовий вид з вікон. Консьєрж, камери 24/7, підземний паркінг, охорона. Супермаркет NOVUS прямо в ЖК. Велика квартира у центрі міста. Золоті Ворота. Поруч вся необхідна інфраструктура для життя. 10-15 хв і ви в центрі всіх подій. В ЖК зараз живе 40-50% людей. Це бонус для тих, хто хоче жити в безпеці та тиші в центрі міста. Секція: 13 Поверх: 14 /18 Кожен елемент - абсолютно новий. Про квартиру: - Ремонт високого рівня (робився під себе на довгострокову перспективу) - Велика кухня + вітальня - Гардеробна (в неї можна...
  • сдано
    28 000 грн/мес

    Родини Крістерів ул., 18/6

    2 комнаты
    66 / 26 / 23 м²
    этаж 7 из 25
    1 г. назад
    Здам в оренду 2к - 66 м2, ЖК Варшавський, вул. Родини Крістерів 18/6, пр. Правди, БЕЗ % Здам 2к квартиру 66 м2 за адресою: вул. Родини Крістерів 18/6, ЖК Варшавський. 6 черга. Якісний та новий будинок. Охорона. Виноградар. БЕЗ % Площа - 66 м2. Велика кухня-вітальня 22 м2 + 2 окремі кімнати. Прихожа з шафою + великий сан вузол з ванною + не засклений балкон. Друга здача. Квартира не планувалась здаватись в оренду. Поверх: 7/25 Вікна на Захід. Ввечері можна спостерігати неймовірні заходи сонця. Є все необхідне для комфортного життя: пральна машина, плита, духова шафа, холодильник, Smart TV, інтернет, великий бойлер, зручна сушка, кондиціонер на кухні, підігрів підлоги всюди, де є плитка, ат...
  • продано
    29 500 $
    4 797 $/сот

    Центральна

    БЕЗ КОМИССИИ
    сельхозназначение
    6 сот
    2 г. 10 мес. назад
    Продам земельну ділянку 6,15 соток в закритому котеджному містечку Міжріччя. Осещина, Київська область, вул. Центральна. БЕЗ КОМІСІЇ Ділянка - 6,15 соток Кадастровий номер: 3221888800:38:140:6829 Поруч біля озера Всі комунікації по вулиці: асфальт, світло, інтернет, газ БОНУС: вже заведено 5 кВт + підключено лічильник. БОНУС №2: вже готова свердловина 66 метрів + помпа. БОНУС №3: на ділянці вже залитий стрічковий фундамент під будинок. В подарунок віддамо проєкт. Про КМ Міжріччя: закрита територія + охорона + відеоспостереження 24/7, багато невеликих магазинчиків з продуктами + великий маркет, аптеки, гарна набережна вздовж Десни з дитячими та спортивними майданчиками, дитячий садок на те...
  • продано
    50 000 $
    1 000 $/м²

    Оноре де Бальзака ул., 61-А

    БЕЗ КОМИССИИ Троещина
    2 комнаты
    50 / 30 / 8 м²
    этаж 2 из 16
    2 г. 10 мес. назад
    Продам 2к квартиру 50,4 м2 по вулиці Оноре Де Бальзака 61-А. Троєщина. Через дорогу від ТЦ Район. Без комісії! Затишна квартира на 2-му поверсі з простим ремонтом. Площа - 50,4 м2 Поверх - 2 / 16 Вид з вікон - у тихий двір Великий балкон, де можна відпочивати і зберігати речі. До метро Почайна - 20-30 хв на транспорті Поруч біля дому: 2 школи, дитячий садок, торговий центр "Район", зупинки громадського транспорту, багато різних ресторанів та іншої необхідної інфраструктури. Все поруч. Ідеально підійде для пари або сім'ї з дитиною. Можна купити та здавати в оренду. Також можна переробити на чудову євро двушку. П.С. - Ця квартира має дуже сильну енергію. Чому саме? - Дізнається тільки пок...
  • продано
    64 500 $
    1 697 $/м²

    Берестейский просп. (Победы), 67

    БЕЗ КОМИССИИ ПЕРЕУСТУПКА Святошин ЖК San Francisco Creative House
    1 комната
    38 / 17 / 10 м²
    этаж 12 из 16
    3 г. назад
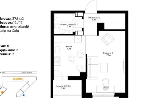
    Продам 1к 37,5 м2 в ЖК Сан Франциско, ЖК San Francisco від власника. БЕЗ %. 2 будинок. 12 поверх. Введено в експлуатацію. Можна заходити на ремонт. Адреса: проспект Перемоги 67, метро Нивки - 3 хвилини пішки. Квартира продається по переуступці. Угода в офісі забудовника. Купили, оформили на себе, і можна заходити на ремонт. Будинок - введено в експлуатацію. Стильна вхідна група. Охорона 24/7 + камери. Внутрішній двір - тільки для мешканців будинку. Система розумний будинок + керування за допомогою мобільного приложения Sfera Living System. Також в будинку є підземний паркінг, в який можна спуститись на ліфті. Будинок №2 Площа - 37,5 м2 Поверх - 12 / 16 Вид з вікон - на Схід (в сторону ЖК...
  • продано
    47 000 $
    1 205 $/м²

    Правды просп. (Правды), 45

    БЕЗ КОМИССИИ ПЕРЕУСТУПКА ЖК Варшавский Микрорайон
    1 комната
    39 / 15 / 10 м²
    этаж 16 из 24
    3 г. назад
    Продам 1к 38,7 м2 в ЖК Варшавський від власника. БЕЗ %. 8 черга. Введена в експлуатацію. Можна заходити на ремонт. Будинок 8.3 Площа - 38,7 м2 (майже панорамні вікна) Поверх - 16 / 24 Вид з вікон - на Захід (Retroville), внутрішній двір. Ввечері можна дивитись неймовірні заходи сонця. Переуступка. Угода в офісі забудовника. Одразу після угоди можна отримувати ключі і заходити на ремонт Ціна - $47,000 Власник. Без комісії для покупця!
  • сдано
    12 500 грн/мес

    Правды просп. (Правды), 41-Д

    1 комната
    40 / 16 / 14 м²
    этаж 24 из 25
    3 г. 5 мес. назад
    Здам в оренду 1к квартиру 40 м2 за адресою: проспект Правди 41-Д, ЖК Варшавський, ЖК 5 Квартал. Якісний та новий будинок. Гарний ремонт. Виноградар ЖК Варшавский. Проспект Правды. Виноградарь Площа - 40 м2. Велика кухня + окрема кімната з шафою. Прихожа з шафою + великий сан вузол з душовою + засклений балкон. Поверх: 24 з 25 Вікна на Схід Є все необхідне для комфортного життя: кондиціонер, пральна машина, плита, холодильник, інтернет, бойлер на 50 л. Чого не має з техніки: мікрохвильовка, духова шафа, телевізор, посудомийка. Лічильники на все: вода, світло, опалення. Комунальні послуги: літо - 1000 грн, зима 1600 грн (у квартирі дуже тепло, не потрібно сильно обігрівати) ЖК 5 Квартал....
  • сдано
    13 500 грн/мес

    Правды просп. (Правды), 43

    1 комната
    42 / 15 / 16 м²
    этаж 13 из 18
    3 г. 6 мес. назад
    Здам в оренду 1к квартиру 41,7 м2 за адресою: проспект Правди 43, ЖК Варшавський. 3 черга. Вже давно всі закінчили ремонти. Якісний та новий будинок. Виноградар ЖК Варшавский. Проспект Правды. Виноградарь Площа - 41,7 м2. Велика кухня-вітальня + окрема кімната з шафою купе. Прихожа з шафою + великий сан вузол з душовою + засклений балкон. Поверх: 13 Вікна на Південь (у внутрішній двір) Є все необхідне для комфортного життя: пральна машина, плита, духова шафа, холодильник, фільтрація води, Smart TV, інтернет, бойлер на 80 л, зручна сушка на балконі. Лічильники на все: вода, світло, опалення. Комунальні послуги: літо - 1000-1200 грн, зима - 1800-2400 грн. 24/7 охорона на першому поверсі....
  • продано
    115 000 $
    1 198 $/м²

    Берестейский просп. (Победы), 67

    БЕЗ КОМИССИИ ПЕРЕУСТУПКА Святошин ЖК San Francisco Creative House
    3 комнаты
    96 / 40 / 45 м²
    этаж 16 из 17
    2021 год постройки
    3 г. 7 мес. назад
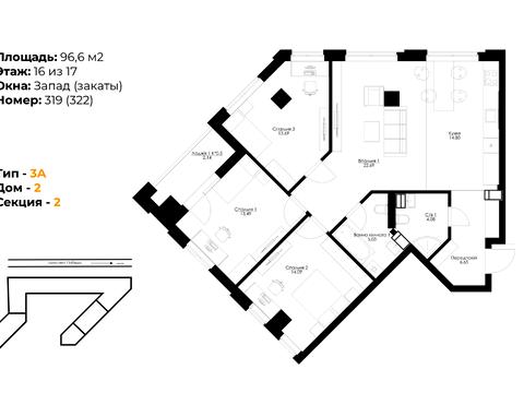
    Продается 3к квартира 96,6 м2 по адресу: проспект Победы 67, ЖК Сан Франциско, метро Нивки 2 мин пешком. Без комиссии! Квартира продается по переуступке в центральном офисе застройщика. Купили, оформили на себя, и можно заходить на ремонт. Дом - введен в эксплуатацию. Ухоженный подъезд. Стильная входная группа. Охрана 24/7 + камеры. Внутренний двор - только для жильцов. Система умный дом + управление домом с помощью мобильного приложения Sfera Living System. Также в доме есть подземный паркинг, в который можно спуститься прямо на лифте. Вместе с квартирой можно купить паркоместо (либо 2 паркоместа) по хорошей цене. Площадь: 96,6 м2. Очень просторно за счет большой кухни. Этаж: 16 (всего...
  • сдано
    10 000 грн/мес
    278 грн/м²

    Жилянская ул., 60

    БЕЗ КОМИССИИ Олимпийская
    помещение свободного назначения
    36 м²
    3 г. 8 мес. назад
    Сдам в аренду помещение 36 м2, метро Вокзальная, Университет, Олимпийская, ул. Жилянская 60, БЕЗ КОМИССИИ Расположение: ул. Жилянская 60 (вход через арку) В 1998 году дом был отреставрирован. Заменены все коммуникации. Этаж - 1 Мощность - 13 кВт Минимальный новый ремонт. 2 мокрые точки Площадь помещения: 36 м2 Высота потолков - 3 м2 Полностью open space + подсобное помещение. Место для бизнеса. В окружении элитных ЖК и платежеспособных клиентов. Сразу через дорогу строится Бизнес Парк NUVO. В радиусе 200 метров: ЖК 38 Жемчужина, ЖК AuRoom, ЖК Diplomat Hall, БЦ 101 Tower, БЦ Евразия, ЖК RESIDENT, ЖК CHICAGO, БЦ G-50, БЦ Platforma. Помещение хорошо подойдет под: салон, барбершоп, кафе, дос...
  • сдано
    18 000 грн/мес
    429 грн/м²

    Михаила Бойчука ул. (Киквидзе), 6-А

    БЕЗ КОМИССИИ Печерская
    многофункциональное помещение
    42 м²
    3 г. 8 мес. назад
    Сдам помещение. Фасад 42 м2 возле ЖК Новопечерские Липки, ул. Бойчука 6-А, метро Дружбы Народов 5 мин пешком. Без комиссии! Фасад. Первый этаж. Проходная часть. Площадь: 42,3 м2 с ремонтом! Возле самого популярного комплекса Киева. ЖК Новопечерские Липки Электричество: 7 кВт. Помещение ранее использовалось под суши-бар. Полностью оборудовано. Возможен выкуп бизнеса. Если не нужно оборудование - предыдущий арендатор самостоятельно вывезет. Подойдет абсолютно под любой вид деятельности. Цена: 18000 грн + коммунальные услуги Арендатор комиссию не платит.
  • сдано
    19 500 грн/мес

    Авиаконструктора Игоря Сикорского ул. (Танковая), 1

    2 комнаты
    75 / 20 / 35 м²
    этаж 21 из 24
    2011 год постройки
    2 г. 5 мес. назад
    Здам в оренду 2к квартиру 74,8 м2 по вулиці Сікорського 1, Танкова 1, в ЖК Зелений острів-1. Новий будинок. Метро: Берестейська 10 хв пішки, Нивки 7 хв на машині. Площа – 74,8 м2. Велика кухня-вітальня+окрема кімната з гардеробом+суміжний санвузол. Великий передпокій та подвійний балкон. Поверх: 21 з 24 (всього 4 квартири на поверсі, 3 ліфти) Вікна на Південний Схід. Гарний панорамний вид на місто. Є все необхідне для життя: пральна машина, плита, духовка, холодильник, мікрохвильова піч, 2 телевізори, бойлер на 80 л. Додатково є: сейф, посудомийна машина, підігрів підлоги. Завжди світло за рахунок великих вікон та сонячної сторони. Встановлено лічильники на тепло, світло, воду. Комуналь...
  • сдано
    14 000 грн/мес
    230 грн/м²

    Салютная ул., 2Б

    многофункциональное помещение
    61 м²
    2021 год постройки
    3 г. 6 мес. назад
    Сдам помещение. Фасад 61 м2 в ЖК Файна Таун, ул. Салютная 2Б, метро Нивки 15-20 мин пешком. Без комиссии! Первая сдача в аренду. Фасад. Первый этаж. Площадь: 61,4 м2 (большой опен спейс с потолками 3,6 м) В самом популярном комплексе Киева, ЖК Файна Таун. Электричество: 7 кВт. Помещение расположено возле второго КПП. Через год будет самое популярное место в ЖК, поскольку будет построена школа + детский сад, торговый центр (СИЛЬПО, СПОРТ ЛАЙФ). Уже действует большая зона отдыха с бассейнами, спорт площадками и барбекю зоной. Подойдет абсолютно под любой вид деятельности. Цена: 14000 грн в месяц + коммунальные услуги Лучшее предложение по аренде во всем ЖК! Арендные каникулы дадим. Аренд...
  • сдано
    45 000 грн/мес
    682 грн/м²

    Глубочицкая ул., 13

    многофункциональное помещение
    66 м²
    1 г. 7 мес. назад
    Здам приміщення. Фасад 66,5 м2 в ЖК Львівський квартал, вул. Глибочицька 13, метро Лук'янівка. БЕЗ% Новий ЖК. 550 квартир. Близько 1200 мешканців + потік людей з вул. Глибочицька + потік клієнтів з БЦ Велес + потік клієнтів сучасної клініки Новий Зір. Фасад. Перший поверх. Абсолютно новий ремонт. Площа: 66,5 м2 (великий опен спейс + кімната + СУ) Стелі: 3,4 м2 Електрика: 15 кВт. Приміщення розташоване у новому ЖК Львівський квартал. Популярне місце на Лук'янівці. На вулиці будується багато нових ЖК. Величезна кількість потенційних клієнтів. ЖК Покровський Пасад, ЖК Mirax, ЖК Greenville Park, ЖК Lookyansky, ЖК PodilPlaza Приміщення розташоване на фасаді біля головного входу до БЦ ВЕЛЕС. Т...
  • продано
    125 000 $
    1 563 $/м²

    Берестейский просп. (Победы), 67

    3 комнаты
    80 / 30 / 33 м²
    этаж 11 из 17
    4 г. 3 мес. назад
    Продам 3к квартиру 80 м2, 11 этаж, по адресу: проспект Победы 67, ЖК Сан Франциско, ЖК San Francisco, метро Нивки 2 мин пешком. Без комиссии! Квартира находится в доме №1. Секция 2. Дом в эксплуатации. Квартира оформлена. Нотариальная сделка. Ухоженный подъезд. Стильная входная группа. Охрана 24/7 + камеры. Внутренний двор - только для жильцов. Система умный дом + управление домом с помощью мобильного приложения Sfera Living System. Также в доме есть подземный паркинг, в который можно спуститься прямо на лифте. Площадь: 80 м2 Этаж: 11 из 17 (2 лифта) Окна: кухня-гостиная во двор, одна из спален в сторону центра. Символично у квартиры крутой номер: 123 Очень функциональная планировка. Иде...
Вернуться ко всем предложениям
Выберите способ подтверждения
Чтобы ваша рекомендация была засчитана, подтвердите свою личность
* Личные данные не будут отображаться на сайте и будут служить только для подтверждения личности.
Как верифицироваться через Дію?
Считайте QR-код сканером в приложении Действие и подтвердите авторизацию Действие.
QR-код будет действителен еще 02:00
Как верифицироваться через Bankid?
Верификация BankID откроется в новом окне. Если страница верификации не открылась, значит окно было заблокировано вашим браузером.
Чтобы разрешить открытие окна, выполните следующие шаги:

1. Проверьте адресную строку браузера на наличие сообщения об ошибке или значка блокировки. Нажмите на него.
2. Если у вас установлен блокировщик всплывающих окон, временно отключите его для этого сайта.
3. Проверьте настройки вашего браузера и убедитесь, что блокировка всплывающих окон отключена или настроена на разрешение открытия данного окна.

Если проблема остается нерешенной, свяжитесь с нашей службой поддержки.
Как верифицироваться через Дію?
Верификация Дія откроется в новом окне. Если страница верификации не открылась, значит окно было заблокировано вашим браузером.
Чтобы разрешить открытие окна, выполните следующие шаги:

1. Проверьте адресную строку браузера на наличие сообщения об ошибке или значка блокировки. Нажмите на него.
2. Если у вас установлен блокировщик всплывающих окон, временно отключите его для этого сайта.
3. Проверьте настройки вашего браузера и убедитесь, что блокировка всплывающих окон отключена или настроена на разрешение открытия данного окна.

Если проблема остается нерешенной, свяжитесь с нашей службой поддержки.
Поздравляем!
Рекомендация засчитана!
В скором времени рекомендация появится на странице риелтора.
Рекомендация не засчитана.
Вы уже оставляли рекомендацию данному риелтору.